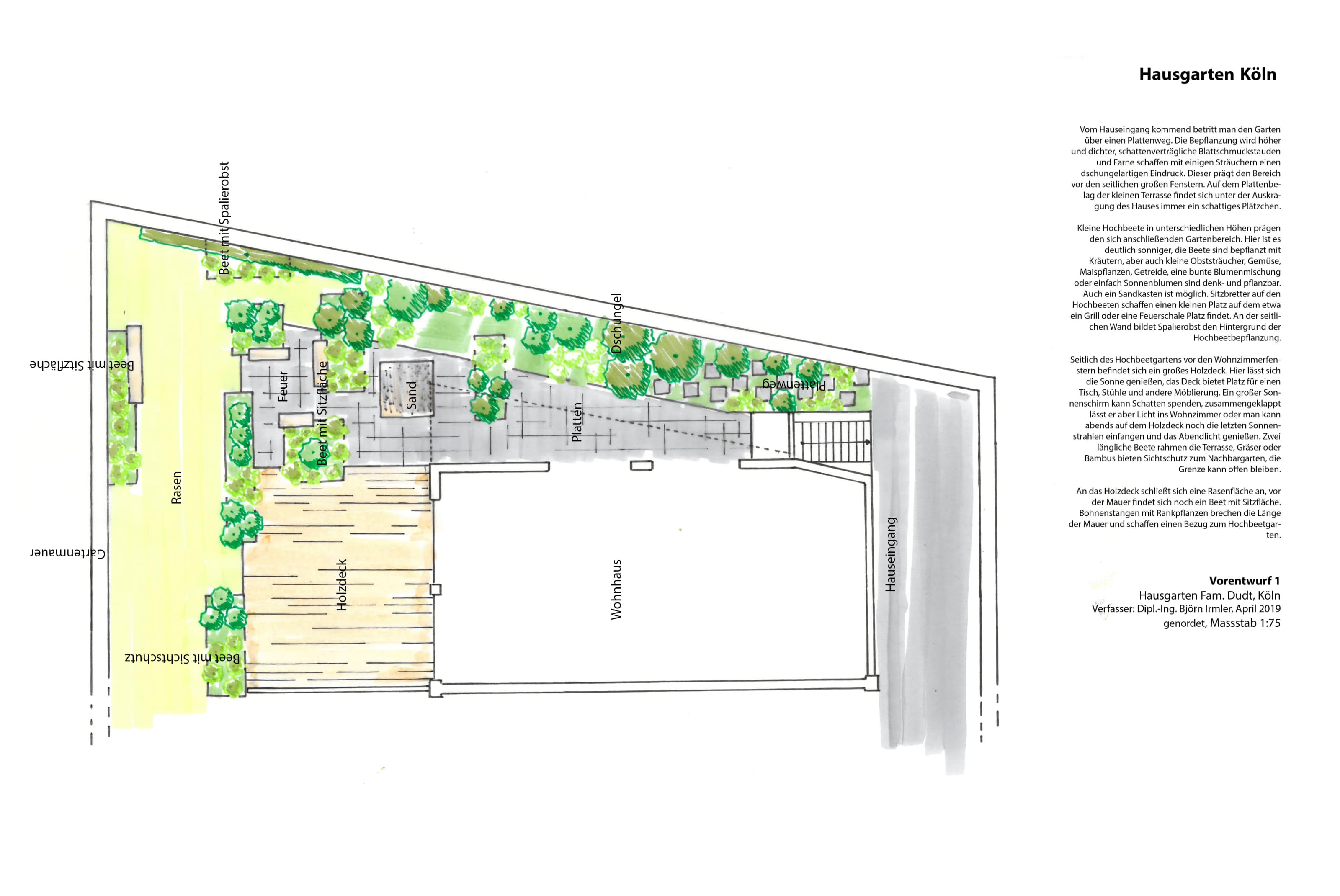
Reiheneckhausgarten
Info


Info 01
Step 01
Beschreibung


Info 02
Step 02
Beschreibung